首页
集采比选
集采竞价
蜀道公招
评选公告
联系我们
我的
登录
注册
登录
注册
什邡磷化工分公司包装秤采购
/
< 查看评选公告 >
招标状态
已结束
已结束
投标截止时间
2025-08-04 10:00
相关附件
(点击附件名称进行下载)
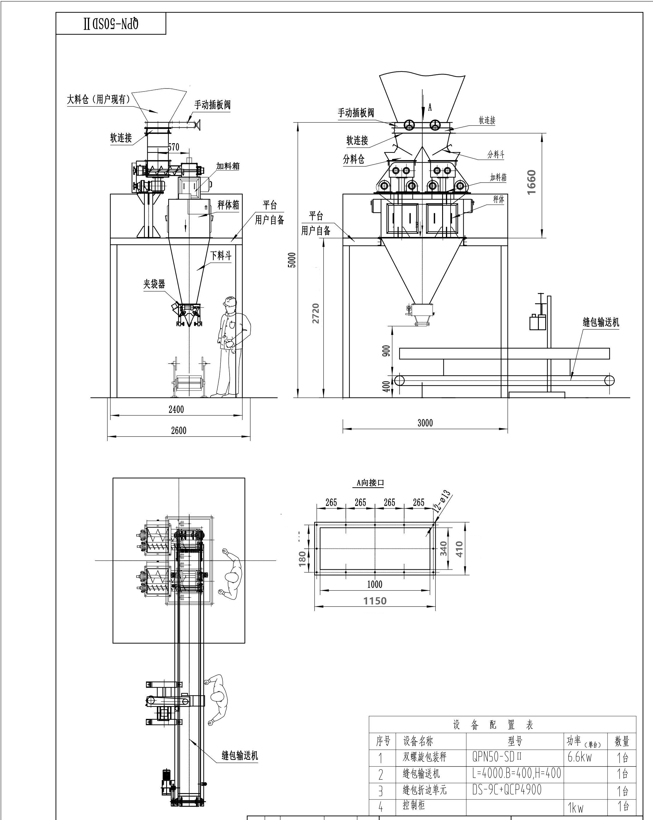
什邡磷化工分公司包装秤公开比选文件-SFLHG-GKBX-2025-HW23.docx
宏达股份磷化工基地包装秤技术要求6-30.docx
双螺旋给料包装秤条件图(四川宏达).jpg
公司名称
请先登录
联系方式
请先登录
投标文档
选择文件
选择文件
图片或办公文档格式,如:.doc / .xls / .pdf 等
为节省等待时间、或避免网络传输中断,建议将单个投标文件处理到10M以内
验证码
短信核验
发送短信
请先登录
视上传文件的多少、文件大小,提交过程可能需要几分钟时间
点击提交后,请不要刷新或关闭窗口
公司名称
请先登录
联系方式
请先登录
验证码
短信核验
发送短信
请注意
本次提交属于“二次报价”(只要不是首次投标,均统称为二次报价)
本次提交的资料
不会覆盖
该项目之前的投标或报价资料
请先登录
视上传文件的多少、文件大小,提交过程可能需要几分钟时间
点击提交后,请不要刷新或关闭窗口
什邡磷化工分公司因生产需要,通过公开比选采购1台自动定量包装秤。使用地点:四川省德阳市什邡市。具体技术要求及布置图详见附件。